Overview
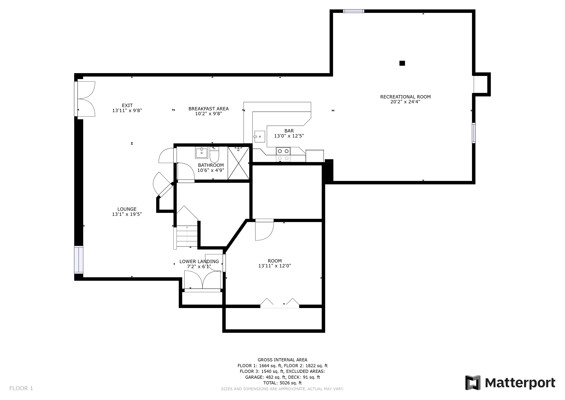
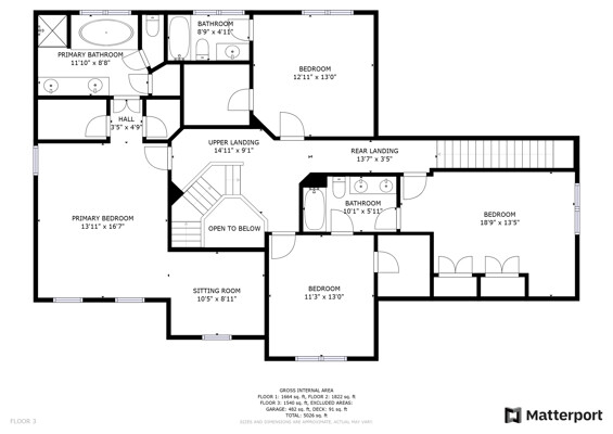
This spectacular 25+ acre Equestrian Farm is 6 miles from historic Leesburg and located among several beautiful wineries. The property includes a 3-level Colonial home with 5 beds, 4.5 baths, 5, 300 sq ft, 2 car garage, Trex deck and a relaxing large patio and pre-wired for your hot tub. The 2017 custom Amish-built 10 stall center aisle Barn with over 8, 000 sq ft has every amenity desired with premier equestrian facilities. Barn facility includes rubber floors and matted stalls for comfort, Stallion stall with covered run out, wash rack, laundry room, climate controlled tack room with fireplace and a 12'x36' office, and the loft stores 2, 000 hay bales with stall shoots. The income producing Apartment hosts 2 beds, 2.5 baths, 3, 000 sq ft with private entrance, separate laundry and is perfect as a rental for your in-house trainers, veterinarians, or as a luxurious guest house for family and friends. Enjoy your morning coffee from your screened-in porch as you survey the 11 paddocks each with electrical & water, 5 run-ins, over 2 miles of newer 3 board hotwire fencing, 3/4 mi bridle path, Riding Ring with GGT Footing, 50' Round Pen, covered 5-horse Q-Line Eurowalker, and the additional 4 stall shed row barn with feed, storage & run-ins. The Barn driveway provides easy horse loading and unloading with ample parking for trailers, equipment, and so much more! Owners have thought of everything including the Barn chandeliers! Barn/Apartment complex has its own well, septic and electric. Apartment tenant has lease through January 2023 with 30 days notice. Owners agree to road maintenance agreement.